THE FUTURE IS BRIGHT,
AND IT’S JUST
AROUND THE CORNER
See what we’re building toward and follow along for footage, photos, updates, and more.
THE FUTURE IS BRIGHT,
AND IT’S JUST AROUND THE CORNER
See what we’re building toward and follow along for footage, photos, updates, and more.
WEST END CONSTRUCTION PROGRESS UPDATES
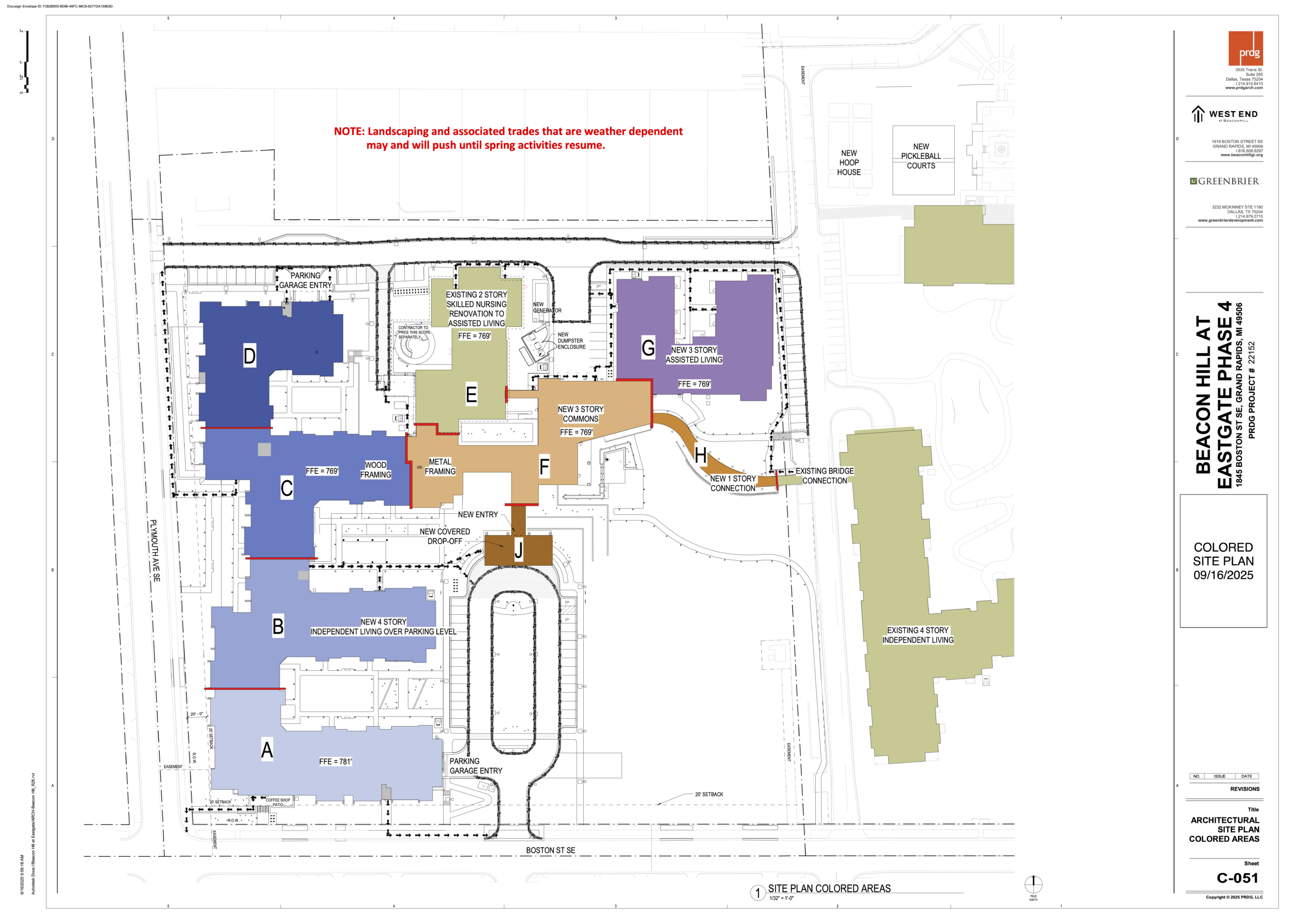
The next phase of Beacon Hill is underway, and we are glad to share the journey with you. Led by Rockford Construction, work on the site is actively progressing. This page will feature ongoing updates, photos, and project highlights to help you stay connected as progress continues.
THE LATEST UPDATES
May 22nd, 2026
Construction progress continues steadily across the campus this week. Footing work remains underway in Areas A and B, while foundation walls are currently being poured in Area B. Crews have also begun work on the east/west sanitary line and drive north of Area G.
Additional progress includes slab preparation in Area F, removal of shoring from the post-tension (PT) area ahead of pour #2, and installation of PT clips for final connections following the required 28-day curing period. Post-tension pour #3 is also scheduled for this week. Elevator #5 and the east shear wall were poured this week, while underground utilities and plumbing work continues through Areas F and G. Masonry crews are currently working on Stair 7 and are expected to move to Elevator 1 next week.
You may have noticed the small “playhouse-like” structure near the construction site. This is actually a full-scale architectural mock-up designed to help the project team evaluate the future building façade that will face Plymouth and Boston Street.
The mock-up allows architects and construction teams to review proportions, materials, and design details in advance to ensure the final exterior is both accurate and thoughtfully executed before construction begins on the actual building façade.
May 1st, 2026
Construction continues to progress across multiple areas of the site. Footings in Areas A and B remain ongoing, while sanitary work (east/west) and the drive north of Area G are in progress. Mass excavation at the east end of the driveway near Area G continues alongside footing work in that area. In Area C, post-tension shoring from Area D is wrapping up this week, and mild steel is being installed for upcoming post-tension deck pours. Elevator 4, including the shear wall and buttress, has been fully poured. Underground utilities and plumbing work continue in Area F, while masons have begun work on the stair building in Area G. Additionally, exterior mockup wall framing has been completed.
April 24th, 2026
Over the next two weeks, construction activity will continue progressing across multiple areas of the site. Footings in Area A and Area G will remain ongoing, while Velting Contractors continues sanitary work along the east–west line and the drive north of Area G, and begins mass excavation at the east end of the driveway near G. Post-tension shoring materials are advancing from Area D into Area C, where sleeve installation is also underway, alongside the installation of mild steel for the post-tension deck. Key structural milestones include the final pours for Elevator #4 and the shear wall near Stair 2. Buttress walls have been completed in Area C, with forming now underway in Area B. Meanwhile, underground utility work continues in Area F, and crews will begin work on elevator and stair shafts in Areas G and F, with masons mobilizing on site this week.
April 17th, 2026
Over the next two weeks, construction will continue progressing steadily across multiple areas of the site. Velting Contractors will be completing sanitary work along the east and west sides, as well as the drive north of Area G, while also beginning mass excavation at the east end of the driveway and starting footings for Area G. Post-tension shoring materials will be delivered and installed to support ongoing structural work. Several key milestones are anticipated, including the final concrete pours for Elevator #4 and the shear wall near Stair 2. Buttress walls in Area C are complete, with similar work underway in Area B. Underground utilities will continue to be installed in Area F, and construction of the elevator shaft in Area G is scheduled to begin.
March 27th, 2026
With temporary roads in place to support concrete work and ongoing excavation. In Area G, demolition of the existing wall has been completed, and mass excavation is underway. Work on the sanitary main has begun, with boring scheduled to start under the bridge on Monday.
Concrete work is advancing well, with Area C footings and foundations nearly complete. Crews are also making progress on elevator foundations, shear and buttress walls, and additional footings across Areas C, F, and G. Utility installation remains ongoing, particularly in and around Area G.
Looking ahead, slab pours for Area D are scheduled to begin soon, while waterproofing, exterior backfilling, and underground electrical and plumbing work continue. Post-tension formwork and footings for Areas A and B are set to begin in April.
SEE MORE IMAGES AT THE LINK BELOW
All construction site photos are taken by Further Up Drone Services, LLC
BUILDING THE WEST END: BY THE NUMBERS
The West End expansion is a major milestone for Beacon Hill, and the scale of the work happening behind the scenes is impressive. Here are a few interesting facts about the project currently underway:
The West End project spans approximately 7.5 acres — about the size of nearly six football fields.
Site preparation includes moving about 30,000 cubic yards of excavated earth and placing 20,000 cubic yards of fill — enough soil to fill roughly 3,000 large dump trucks.
At peak construction activity, approximately 160–190 construction workers will be on site each day — about the size of four full tour buses of people working on the project.
The project will incorporate roughly 240 tons of structural steel — weighing about the same as 40 adult elephants.
DID YOU KNOW?
Beneath parts of the West End construction site are three underground stormwater detention systems designed to manage rainwater and support proper site drainage. These systems can store a combined 427,300 gallons of stormwater within 67,806 cubic feet of underground storage. To put that into perspective, that’s roughly the equivalent of more than 8,500 household bathtubs of water.
PROJECT PARTNERS
The West End expansion is made possible through the expertise and collaboration of many talented partners. We are grateful for the architects, designers, contractors, and consultants who are helping bring this vision to life.
Explore the organizations contributing to the design and construction of the West End below.
Frequently Asked Questions
The West End project is the next phase of Beacon Hill’s campus expansion, including the addition of new living spaces, building state-of-the-art Assisted Living, enhanced amenities, and improved outdoor areas designed to better serve current and future residents.
Construction is planned to take place from now to mid 2028. Timelines may shift slightly due to weather or site conditions.
We update this page whenever new information becomes available—typically weekly or bi-weekly. Drone footage, progress notes, and project documents will be added as they are released.
For safety reasons, the active construction zone is closed to all non-construction personnel. However, you can follow along through drone images and progress updates posted here.
Some temporary disruptions, such as increased truck traffic, noise, or adjusted walking routes, are possible. We are actively working to keep noise levels and disruptions to a minimum for both the campus and surrounding neighborhood. When impacts are expected, they will be noted in updates so residents and families can plan accordingly.
Have a question?
Contact the team at Rockford Construction.
Eric Kella
Project Executive
269.547.8255
ekella@rockfordconstruction.com
Bryan Sculthorpe
Senior Project Manager
720.471.8639
bsculthorpe@rockfordconstruction.com
Adam Koorndyke
Senior Superintendent
616.581.5981
akoorndyke@rockfordconstruction.com